天津[切换]
  • 装修热线:022-83513380
入驻巧装家

高品质互联网家装平台

老房研究院

老房装修文化艺术节中国老房装修标准指南

已为4057位业主提供老房装修服务

免费预约 开工即省30%
  • 您的称呼
  • 手机号码
  • 所在小区
预约热线:13920513009
为了你的利益及我们的口碑,你的隐私将被严格保密。
x 点击进入天津站>>
选择其他城市:

您的位置: 巧装家 > 设计案例 >

龙顺园50㎡简美

龙顺园50㎡简美

小区:
龙顺园
户型:
普通
面积:
50.0平米
风格:
北欧
预算:
5.00万元
设计理念:
本案设计定位为简美风格,整案色彩用中性色的配色手法,以米黄色为主背景色,大理石和深木色做为墙面造型点缀,使整体色彩和谐,安静。整体空间装饰都采用简约的直线条,干净随性。无论是家具、装饰还是硬装的处理,都迎和了美式风格追求的内敛、质朴风格。使新美式风格看起来更加实用、富有现代感。
分享到:
唐博

唐博编号:UZ_2878

级别:

他承诺:
  • 所接的工地均经过国家级的标杠工程施工,平台监理全程严苛监工,15项验收标准,不合格砸掉重做
  • 所接的工地均经过国家级的标杠工程施工,平台监理全程严苛监工,15项验收标准,不合格砸掉重做
  • 从环保设计,环保材料,环保施工,环保检测四个方面要求,承诺环保不达标全额退款
  • 业主提交投诉,30分钟内受理、24小时内上门确认、48小时内协调解决

从业10年 //

  • 本月预约:0个
  • 成交记录 :0条
  • 作品数:4个
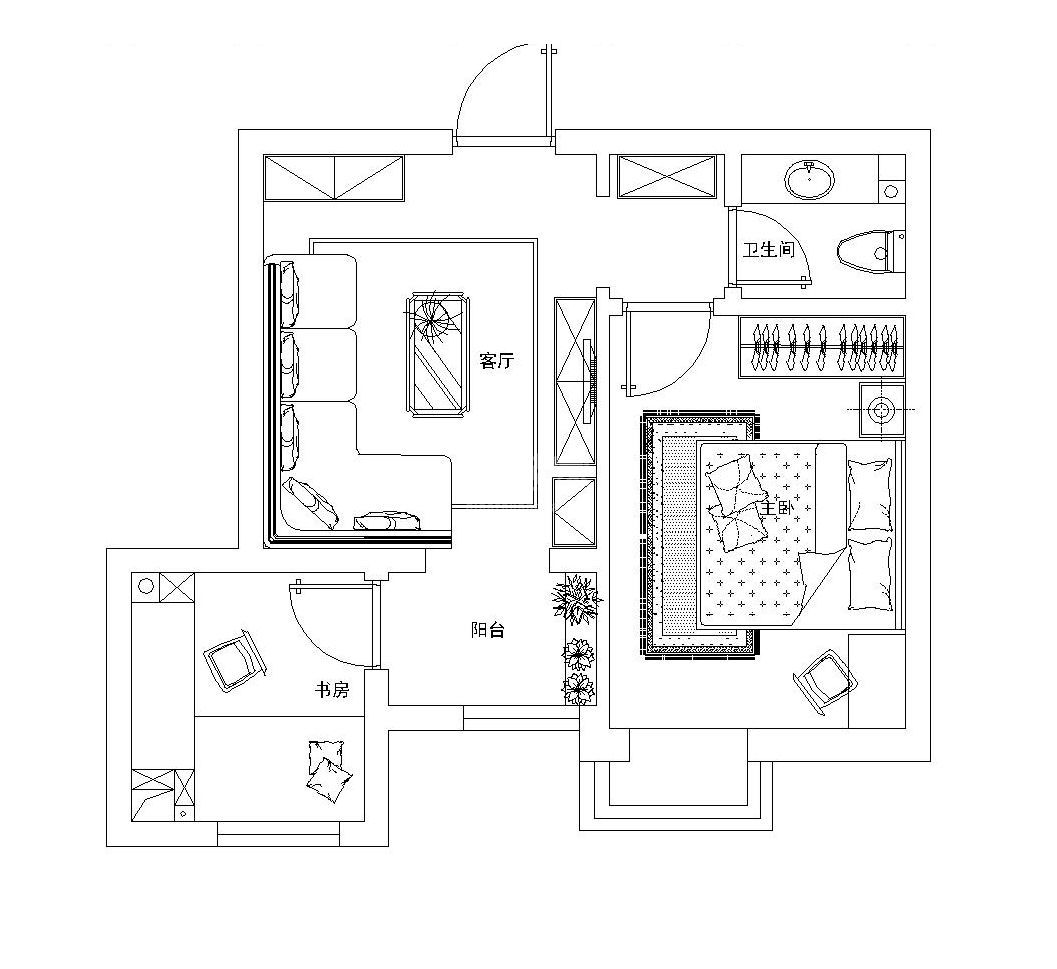
效果图 施工图
天津 今朝 装修 西青 龙顺园 老房-龙顺园50㎡简美
天津 今朝 装修 西青 龙顺园 老房-龙顺园50㎡简美
天津 今朝 装修 西青 龙顺园 老房-龙顺园50㎡简美
天津 今朝 装修 西青 龙顺园 老房-龙顺园50㎡简美
天津 今朝 装修 西青 龙顺园 老房-龙顺园50㎡简美
龙顺园50㎡简美

天津 今朝 装修 西青 龙顺园 老房

我家按此装修 需要多少钱呢

设计案例点评

加载更多